Течение ци в помещении – очень интересная тема. Тут вам не понадобятся формулы и компас – лишь знание нескольких правил и умение почувствовать. На подсознательном уровне многие люди ощущают изменение энергетики пространства: места со стабильной, гармонично распределенной ци описывают как «уютное место, из которого не хочется уходить».
Попадая в квартиру или дом из входной двери ци должна иметь возможность накопиться, для того, чтобы потом наполнить жилое пространство. Зачем? Энергия дома подпитывает нашу жизненную энергию. Если место для сна удачно – сон крепок, он восстанавливает силы и оздоравливает. В квартире, наполненной ци, живется легче, приятнее, возникает больше возможностей.
Первое помещения от входа называется «первое тайчи». Хорошо, если первое тайчи просторное. Поэтому ищите квартиру с просторной прихожей, не загромождайте коридор у входной двери вещами. Часто, кстати, именно в первом тайчи Мастера рекомендуют проводить активизации: ци тут «свежее».

Иногда бывает так, что напротив входной двери – сразу же стена. В этой ситуации, особенно если там висит зеркало, ци, как только заходит – норовит сразу выйти наружу. Попробуйте сами – и вам захочется сделать то же самое.) Решение: найти дизайнерское решение, при котором внимание будет сразу же привлекаться чем-то в глубине квартиры: ярким светильником, подсвеченной картиной; постелите у двери коврик, с диагональными полосками, перенаправляющие взгляд в нужном направлении. Ну и зеркало прямо напротив двери вешать не стоит. Это можно делать только в больших, объемных прихожих – холлах.
Другая история, когда напротив входа вы сразу видите длинный узкий коридор. Обычно в конце такого коридора бывает санузел (в стандартных Г-образных трешках). Проблема в том, что в узких помещениях ци сжимается и ускоряется. И ускорившись, на всех парах устремляется вперед и вглубь, не успев гармонично распределиться по квартире. Если у вас – такая планировка, постарайтесь, опять-таки с помощью дизайнерских решений притормозить ци: зонировать пол в коридоре разным типом покрытия, добавить яркие пятна, тормозящие внимание, на стены.
Также часто задают вопрос, что делать, если окно расположено прямо напротив входа. Вариантов может быть множество. Не стоит беспокоиться если:
- Окно не на прямой линии с входной дверью
- Окно далеко от входа, но находится в комнате (а не в конце узкого коридора)
- Окно занавешено (даже полупрозрачными занавесками)
Вот здесь, например, нет ничего страшного: окно далеко, по дороге ци «прогуливается» по большой гостиной. Если вас, все-таки, смущает такая ситуация – поставьте на подоконник пышный цветок или повесьте тюль.
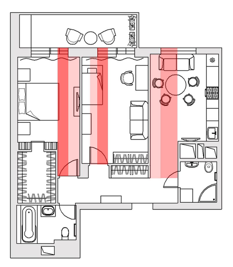
Такие линии дверь-окно, стоит учитывать в спальнях и кабинетах, то есть в тех комнатах, где человек проводит много времени. Один Мастер назвал это явление «ша двери»: ци здесь слишком сильная, чтобы быть комфортной. Поэтому не стоит ставить кровать или рабочей стол напротив двери в спальню, особенно, если дальше по этой же линии находится окно.
На плане красным цветом отмечены траектории слишком активной ци.
Если уж так получилось, что кровать больше поставить негде, кроме как на линии «сквозняка» - на ночь закрывайте дверь занавешивайте окно. Хорошо бы еще поставит между дверью и кроватью какой-то предмет мебели, хотя бы тумбочку. В книгах обычно советуют поставить ширму; но часто из-за размеров комнаты это невозможно.
Все, о чем мы говорили, относится к «школе форм». Часто я видела, как нарушаются принципы школы форм из-за того, что кровать, например, хотят поставить в хорошие Летящие звезды. Это не лучшее решение. Формы – материальны, в отличие от звезд и их воздействие на человека - тоже. Вы получите плюс от хорошей комбинации, но побочным эффектом будет плохой сон, усталость, снижение иммунитета. Месяц-два так поспать можно, долго – не стоит.
И всегда, если вы сомневаетесь – есть ли какие-то внутренние ша (негативное влияние), удачно ли вы произвели перестановку – постойте и прочувствуйте. Если настроиться, ваше тело само вам подскажет, как течет ци.
А более сложным вещам – летящим звездам, активизациям – можно научиться, очно или онлайн.



