Совсем недавно в нашем клубе Песочница, мы разбирали очень интересный объект.
В 2017 году семейная пара приобрела квартиру, и через некоторое время – домик в СНТ.
Интересен тот факт, что любое ваше жилье, собственником которого вы являетесь, будет отражать события вашей жизни. Не удивительно, что и в доме, и в квартире фэн шуй отражает ситуацию со здоровьем и другими аспектами жизни. И в квартире, и в дачном домике отсутствует Запад и поврежден Северо-Запад.
Пара проживает на даче все лето, до холодов. Обратились они с запросом на поддержание здоровья.
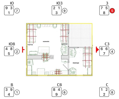
Карта звезд, приложенная к объекту, не отражала события, происходящие в жизни жильцов. Всё верно, ведь при анализе жилого пространства по Летящим Звездам важно правильно определить фасад дома! Мы хорошенько «осмотрели» домик и определили новый фасад. В процессе консультации была построена новая натальная карта по стороне фасада, которая отразила всю ситуацию в целом.
И давайте теперь перейдем к важному вопросу, всегда ли нужно активно использовать своевременную звезду? В нашем случае и в текущий период – это 9-ка.
Ситуация следующая:
Женщина Гуа 8: проблемы с желудком, повышенная эмоциональность, периодически пошаливает нервная система.
Мужчина Гуа 4: проблемы со зрением, зимой была операция на глазах, катаракта. Периодически мужчину тревожит повышенное давление. Наблюдаются проблемы с сердцем, суставами.
Комната 93, мужчина спит в комбинациях Летящих Звезд 93/94/92, конфликта в перечисленных комбинациях нет, но избыток данной энергии может приносить проблемы с сердцем, глазами, артериальным давлением. Причем комбинация 92 приносит проблемы с памятью и ухудшение когнитивный функций мозга, человек может переспрашивать по несколько раз одно и тоже и плохо запоминать сказанное, что и подтвердилось в ходе беседы.
Далее мы стали смотреть, что же может давать такие истории со здоровьем у мужа. И заметили довольно серьезное дублирование 2-ки. А учитывая, что в паре 92 выигрывает именно 2-ка, которая становится только сильнее, то мы сразу понимаем откуда такой «букет» и почему болезнь прогрессирует.
На двери в дом также комбинация 12, которая намекает нам, что женщина – лидер в доме, она контролирует мужа, и старается занять главенствующую позицию. Также усиление и активность данной комбинации Летящих Звезд говорит о проблемах с мочеполовой системой. Все сходится: у мужчины – простатит.
Когда мы видим ситуацию с умножением негативной энергии летящей звезды, которая еще и подпитана своевременной звездой, в данном случае 9-кой – это становится поводом хорошо подумать, куда мы можем переставить кровать и как лучше откорректировать влияние комбинаций, чтобы снизить негативный эффект.
Мораль сей истории такова: если рядом со своевременной звездой есть злая звезда, которая расцветает в ее присутствии, то ждать от своевременной звезды спасения не стоит – теперь она сообщник!
И совсем скоро, на курсе Постройка дома в 9 периоде, мы будем разбираться как эффективно и безопасно работать с 9-ками в частных домах, чтобы получать максимальную пользу и избегать возможного вреда.
До встречи на курсе!





Добрый день! Подскажите пожалуйста, можно ли сделать красную или цвет красного кирпича дверь на которой нотальные звезды 9-9? Дверь в секторе ЮЗ. Дом 9 периода.
Спасибо.