Я много раз писала, что совершенно необязательно разбираться в Водных формулах или Летящих звездах для того, чтобы начать применять Фэн Шуй для себя. Базовой в Фэн Шуй является Школа Форм и течение ци, которое создается объектами окружающего нас пространства. И многие принципы построения пространства легко объяснимы с точки зрения здравого смысла и психологии. Казалось бы, проще некуда: немного подумать, постоять в разных точках комнаты, почувствовать, как удобно. И разместить предметы интерьера по интуитивно понятным законам. Однако сплошь и рядом встречаешь, не побоюсь этого слова, «перлы» дизайна, в которых может и есть необычность и красота, но совершенно нет функциональности.
Очередной пример из моей нежно любимой передачи «Квартирный вопрос». Сегодня делали комнату для девочки Насти 11 или 12 лет (на сайте нет определенности). Девочка с отличием закончила 6-ой класс, увлекается музыкой, учит французский – чудесный, улыбчивый ребенок, радость мамы и бабушки.
Задачей программы было переделать самую большую комнату квартиры под девичью, то есть вместить в комнату все, что нужно ребенку – кровать, рабочий стол, фортепьяно. И, в принципе, в комнате подобного размера это можно сделать разными способами.
Те, у кого есть дети-школьники, прекрасно знают, что рабочий стол ученика – это второй по важности предмет после кровати, так как уроков задают много, надо еще что-то и в интернете посмотреть, в общем, за столом ребенок проводит несколько часов в день.
Посмотрим, что получилось.


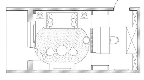
![]()
При таком положении стола вход в комнату оказывается справа за спиной сидящего, проход там, из-за шкафов, также достаточно большой. Ни опоры, ни защиты. Про эргономику детского рабочего места умолчим. За таким столом долго сидеть не захочется. Конечно, это нежелание будет проявляться в зависимости от степени «толстокожести» хозяина стола: некоторые люди очень чувствительны, некоторые – нет. Но подсознание человека будет постоянно настороже, так как оно будет пытаться контролировать дверь за спиной.
Косвенно подтверждение этому факту можно найти в отзыве героев: «Дочка стала больше времени проводить за фортепиано, больше читать книг, располагаясь в новом синем и очень уютном кресле, а это и есть яркий показатель настоящего счастья».
Станет ли девочка Настя немедленно учиться хуже? Скорее всего, нет. Вероятнее всего, просто будет делать уроки на ковре, за кофейным столиком, на кресле. Способность к обучению заложена в ее Бацзы, и это не изменить перестановкой стола. Но все же такое рабочее место может создать определенные трудности.
Что еще вам нравится/не нравится в комнате? Диван не выдвигается, кстати 🙃.


P.S. В нашей школе Mingli мы проводим обучение Фэн Шуй для новичков с «0» в двух форматах – Онлайн-курс и Очный Интенсив 4 дня в Санкт-Петербурге.
Также для новичков в Фэн Шуй мы ежегодно выпускаем «Инструкцию Фэн Шуй», где можно найти, что вам обещают звезды и какие корректоры и активизаторы можно поставить для улучшения ситуации. Рекомендации появляются в Инструкции каждый месяц. Можно купить печатную версию.
И еще у нас есть БЕСПЛАТНОЕ приложение 📱 «Гид по Фэн Шуй». Эта уникальная программа, разработанная Mingli, которая помогает быстро и просто получить разметку квартиры или дома по Фэн Шуй. Теперь вы всегда сможете узнать, в каких местах можно, а в каких нельзя, начинать ремонт и делать активизации, перечисленные в наших «Справочнике Фэн Шуй» и «Инструкции Фэн Шуй», в которых собрана вся информация о Фэн Шуй года.




А мне интерьер как-то кажется слишком будуарно-гламурным для девочки. Диван для сна не подходящий, тем более у направления головы нет защиты (валик не стена), раз диван не раздвигается для сна. Зачем родители вокруг дивана поставили ещё 2 столика с лампами, ТВ абсолютно не уместен в детской, ну и стол/ф-но стоят не на месте. Стол и ф-но - к стенам лицом, чтобы девочка училась спокойно. Я бы даже люстру в такую комнату спокойную купила бы - не свисающую, целую круглую. Шкафы, кстати, понравились :) Но много будет завала на открытых полках скоро.
В общем, "отрезали ребенка из жизни", поместив всё в одну комнату. Ф-но можно было бы в другую комнату поставить, чтобы ребенок проветривался в другом помещении. Я помню плохо как раз занималась на ф-но в своей комнате, где вокруг игрушки и книги. Зато в общей комнате стала более организованна, ведь там же и другим ТВ надо было посмотреть. Так что приучили планировать своё время так :)