В прошлой статье мы познакомились с мастером Го Пу, затронули концепцию инь/ян, поиска горных драконов, анализа места и пространства по методу четырёх защитников. Сегодня рассмотрим следующий аспект в Фэн Шуй, который уходит вглубь архетипического мировоззрения древнего Китая, но также важен для анализа современного дома. Теоретическая основа архитектуры базируется на лекциях профессора, преподавателя кафедры истории архитектуры и градостроительства МАРХИ Шевченко Марианны Юрьевны. Подробнее с темой можно ознакомиться в книге «История архитектуры и градостроительства Китая» и других произведениях автора.
После того, как мы нашли подходящее место для строительства дома или захоронения, следует этап детального анализа, который основывается на соотношения числовых и геометрических пропорций. Дошедшим до нашего времени источником, который описывает применение особых графических символов для анализа пространства, является один из самых древних и влиятельных текстов — Книга Перемен, или И Цзин. Происхождение Книги Перемен берёт начало из земледельческого фольклора; И Цзин использовался как гадательный текст. Некоторые учёные относят его создание к периоду династии Шан (1600–1046 гг. до н. э.), хотя первые сохранившиеся записи датируются поздним периодом, временем династии Чжоу (1045–256 гг. до н.э.). Считается, что текст написал мифический император Фу Си, который, согласно легенде, получил знание от божественных сил. В более поздних интерпретациях Книгу Перемен связывают с Конфуцием и его последователями, которые повлияли на трактовку и распространение.
Картина сунского художника Ма Ли
Описание книги основывается на триграммах и гексаграммах, составленных из сплошных и прерывистых линий. Кроме описательной части эти символы также имеют графическое отображение в виде схем. Таких как схема Ло Шу, Хэ Ту и других. Из этой книги нам для текущего анализа нужны две традиционные схемы расположения триграмм: преднебесная по Фу Си и посленебесная по Вэнь Вану:

Схема преобразования обычной последовательности чисел в схему Ло Шу:

Образованные по квадратно-девятиклеточной модели схемы Хэ ту (из Желтой реки) и Ло шу (из реки Ло):

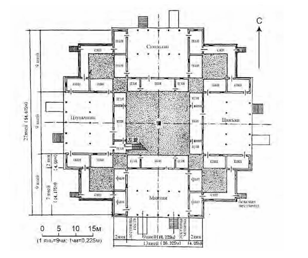
Таким образом зарождается общая система единства чисел и геометрических форм. Рассмотрим некоторые примеры практического применения:
колодезное поле рынок города Дасин (схема Шевченко М.Ю.)
Данные числовые и геометрические теории использовали при строительстве храма-дворца Минтан, «зал света». Зал был местом сосредоточения духовных практик и обрядов.
Изначально считался местом поклонения или центром религиозных традиций, но со временем стал центром духовной жизни. В китайской культуре зал света, Минтан, символизирует гармонию между человеком и природой. Зал также служит центром для проведения ритуалов и церемоний, направленных на достижение гармонии и благополучия. С течением времени пространство минтана претерпевало изменения и адаптации под влиянием исторических событий и философских школ. Но всегда сохраняло свою значимость.
В большинстве случаев Минтан изображался в виде квадратной формы и разделялся на девять помещений и пять залов. Пять залов соответствовали пяти элементам У Син, четыре стороны – сторонам света.
Сегодня Зал света Минтан продолжает играть важную роль в духовной жизни Китая. Он остаётся местом проведения практик и методов достижения внутренней гармонии. Люди приезжают сюда, чтобы получить вдохновение, покой или насладиться красотой этого места. Это не просто здание, а центр духовной, культурной и творческой жизни Китая.
В этой части статьи мы рассмотрели теории соотношения числовых и геометрических пропорций, особых графических символов для анализа пространства и некоторые примеры практического применения. В следующей статье, на других примерах, мы рассмотрим применение знаний китайской метафизики в древности и постепенно перейдём к современным архитектурным сооружениям.
Используемая литература:
- Лоу Чинси. Двадцать лекций по древней архитектуре Китая. Издательство Ассоциации строительных вузов, 2010
- Юй Сисянь «Геомантия (Фэн Шуй) в культуре Китая», составление и перевод Милянюка А. О.
- История архитектуры и градостроительства Китая, Шевченко М. Издательство Архитектура-С, 2018
Дмитрий Баров




Дмитрий, Фу Си создал Преднебеснего Ба Гуа и это не имеет ничего общего со И Цзином. Цар (Ван) Уън (Вэнь) из рода Чжоу создал Поздного Ба Гуа (никто не знает почему он преоформил Преднебеснего) и написал И Цзин, потом эго сын Гун Дан продолжил писат, а несколько века позже продолжил Кун Цзы (Конфуций). Поэтому сегоднешний вариант И Цзина называют Чжоу И (написан во время Чжоу). И тогда И Цзин не имел ничего общое со Фэн Шуя. Вы правильно написали "И Цзин использовался как гадательный текст" - ничего больше этого тогда. Сюень Кунь Да Гуа тогда не было. А и картина Фу Си - неправильна, потому что перед ними Поздного небо.