Ранее мы познакомились с общими теориями, включающими единство числовых и геометрических пропорций, мифологическое представление о вселенной и возникновение композиции сыхэюань. Следующим этапом в изучении нормативной китайской архитектуры является концепция «колодезного поля». Затрагивали это коротко в предыдущих статьях. Рассмотрим подробнее. С помощью этой теории анализировать пространство будет проще, соединяя с типологией сыхэюань и обобщая со знаниями метафизики. Возможно, вы уже заметили, что в композиции сыхэюань отражаются знания Сань Хэ, а колодезные поля строятся по квадратно-девятиклеточной модели Ло Шу.
1 – базовая планировочная схема; 2-5 – развитие типологии сыхэюань; 6-8 – развитие типологии девятиклеточного квадрата; 9 – совмещение композиций сыхэюань и девятиклеточного квадрата в планировке столичного города (схема Шевченко М.Ю.)
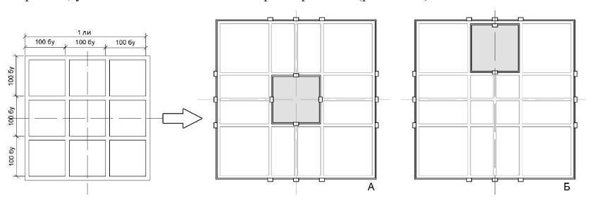
«Колодезные поля», или «цзин тянь» – это древняя система землепользования, которая была разработана и применена в древнем Китае. Появилась в эпоху Чжоу (около 1046–256 гг. до н. э.) и стала одной из первых форм организации землепользования в Китае. Основана на принципах разделения земли на участки и распределения между крестьянами. Представление о делении государственных земель в соответствии с концепцией колодезных полей легло в основу планировки идеального города правителя, которая впервые записана в разделе «Каогунцзи» трактата «Чжоули».
Идея заключалась в том, чтобы создать условия для равномерного распределения земли между крестьянскими семьями и дать справедливое выстраивание обязанностей и ресурсов. «Колодезные поля» были разделены на девять равных участков, которые символизировали связь неба и земли. Восемь периферийных участков принадлежали отдельным семьям, а центральный использовался как совместное поле для общественных нужд.
Схему такого деления разработал философ Мэн-цзы для того, чтобы уточнить размеры территорий китайских государств. Сегодня система «колодезных полей» рассматривается как исторический пример организации землепользования и социального взаимодействия. Нам же интересно понять метафизическую составляющую и провести параллели при современном планировании пространства.
Во время разработки системы колодезных полей началось развитие строительства. Необходимость в укреплении границ, торговле и концентрации ремесел привела к появлению городов. «Колодезные поля» обеспечивали логичную и понятную структуру городских улиц, которые пересекали друг друга под прямым углом, а также равномерно распределить функциональные зоны города: жилые, торговые, административные и производственные районы. Планирование городской среды в соответствии с принципами колодезных полей также облегчало установление и поддержание управления, общественной безопасности.
Также это привело к созданию рынков и городов с границами и зонами, что способствовало дальнейшему развитию торговли. Рынки становились центрами общественной жизни, объединения общества и развивая экономические связи.
Таким образом, мы рассмотрели уже 3 важных аспекта архитектуры Китая.
1-й – метафизическая составляющая (четыре защитника, инь-ян, пять элементов, гексаграммы и др.).
2-й – единство числовых и геометрических пропорций (круг, квадрат, хэ ту, ло шу)
3-й – пространственная регулярность (композиция сыхэюань, колодезные поля)
Следующим этапом перейдём к иерархичности и модульности архитектуры. Затем начнём более материалистичную тему в виде современного строительства. Но для того, чтобы полноценно понять использование методов китайской метафизики в текущих реалиях, желательно разобраться для чего и как это применялось раньше.
Используемая литература:
- Лоу Чинси. Двадцать лекций по древней архитектуре Китая. Издательство Ассоциации строительных вузов, 2010
- Юй Сисянь «Геомантия (фэншуй) в культуре Китая» составление и перевод Милянюка А. О.
- История архитектуры и градостроительства Китая, Шевченко М. Издательство Архитектура-С, 2018.
- Комиссаров С. А., Варёнов А. В. ПАНЬЛУНЧЭН // Большая российская энциклопедия. (2017).
Дмитрий Баров
